Mieszkanie 2 pok., rozkładowe z balkonem | Szczecin | Os. Bukowe | ul. Pomarańczowa 13

Pomarańczowa, 13, Osiedle Bukowe, Szczecin, Polska

Szczegóły oferty

Status
Na sprzedaż
Nieruchomość
Mieszkanie
Rok budowy
1986
Piętro
6
Ilość pokoi
2

Udogodnienia

Internet | TV
Winda
Wanna
Zmywarka
Balkon
Piwnica
Zielona okolica

Floor Plans

Opis oferty

Oferta na wyłączność | Szczecin | Osiedle Bukowe | ul. Pomarańczowa

✨ Idealna lokalizacja – Osiedle Bukowe – zieleń, spokój i doskonale rozwinięta infrastruktura
✨ Mieszkanie 2-pok. | 49,4 m2 | Balkon | Oddzielna kuchnia
✨ Umeblowane | Gotowe do zamieszkania
We can speak English. Parliamo italiano.

🏠 OFERTA
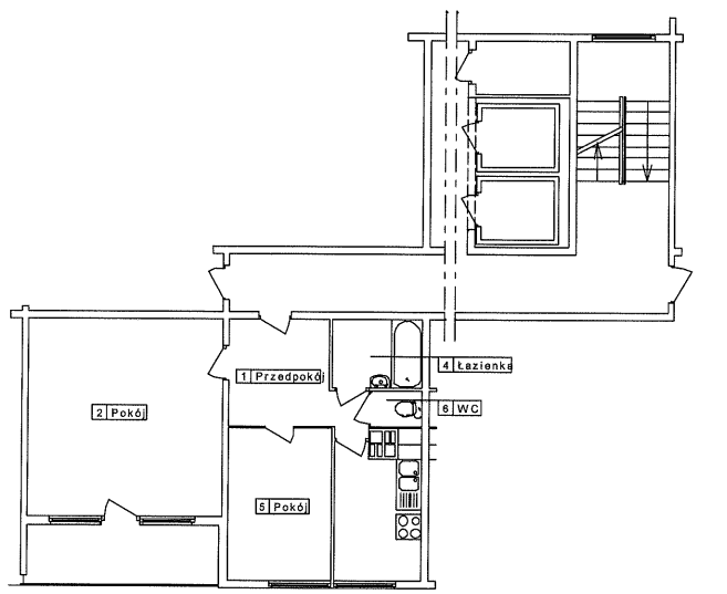
Na sprzedaż w pełni rozkładowe, słoneczne 2-pokojowe mieszkanie o powierzchni 49,4 znajdujące się na VI piętrze, w budynku z dwiema windami, w prawobrzeżnej części Szczecina – na Osiedlu Bukowym. Znajdziemy w nim:

  • ok. 22 m2 – przestronny salon z dużym balkonem zabudowanym bezramowym systemem przesuwnym (szklane panele, które przesuwają się po wielotorowej prowadnicy co umożliwia częściowe lub całkowite otwarcie balkonu).
  • ok. 9 m2 – sypialnia z łóżkiem king size
  • ok. 6 m2 – oddzielna, jasna kuchnia z dużym oknem na południe
  • ok. 4,4 m2 – łazienka z wanną
  • ok. 1 m2 – osobne WC
  • ok. 7 m2 – przestronny przedpokój

Mieszkanie mieści się w zadbanym budynku z lat 80-tych, posiadającym dwie windy. Klatka schodowa jest odświeżona i czysta. Wszystkie okna wychodzą na stronę południowo-zachodnią, dzięki czemu nieruchomość jest doskonale doświetlona i ciepła, co przekłada się na niskie koszty ogrzewania. Mieszkanie jest odświeżone i w pełni umeblowane, gotowe do zamieszkania. Ogrzewanie i ciepła woda z sieci miejskiej.

Właściciel korzysta z piwnicy.

Ogólnodostępne miejsca postojowe wokół budynku.

Mieszkanie mogą nabyć osoby spoza Unii Europejskiej (spółdzielcze własnościowe prawo do lokalu mieszkalnego bez księgi wieczystej).

📍LOKALIZACJA/OKOLICA
Osiedle Bukowe charakteryzuje się cichą i zieloną okolicą, która jest doskonale rozwinięta pod względem infrastruktury. To jedno z najbardziej pożądanych osiedli w tej części Szczecina.

W pobliżu: sklepy, punkty handlowo-usługowe, tereny zielone i rekreacyjne (Puszcza Bukowa, ścieżki rowerowe, pełna infrastruktura edukacyjna (żłobki, przedszkola, szkoły). Dogodny dostęp do komunikacji miejskiej, zapewniający szybki dojazd do centrum – w pobliżu pętla autobusowa oraz przystanki autobusowe linii: A, 65, 66, 77, 84, 97.

🙋‍♀️DLA KOGO?
Idealne dla singielki/singla, pary lub inwestora szukającego pewnej lokaty.

💸KOSZTY UTRZYMANIA
✅706,38 zł / miesiąc – opłaty administracyjne do spółdzielni
✅ prąd – płatny według zużycia

☎️ Skontaktuj się, aby umówić się na prezentację mieszkania na Osiedlu Bukowym.

UWAGA. Mieszkanie może być sprzedane z większością mebli i urządzeń widocznych na zdjęciach za dodatkową opłatą.

Zarządzamy wynajmem. Sprzedajemy nieruchomości. Szczecin i okolice.
Jeśli chcesz sprzedać lub wynająć swoją nieruchomość, doceniasz profesjonalizm oraz agentów, którzy dbają o bezpieczeństwo transakcji – zapraszam do kontaktu.

Więcej podobnych ofert

Szybka sprzedaż